Référence : 102
Calculette
Partager
VICHY, CENTRE VILLE STUDIO RENOVE DANS PETITE COPROPRIETE
Partager l'offre
Description de l'offre
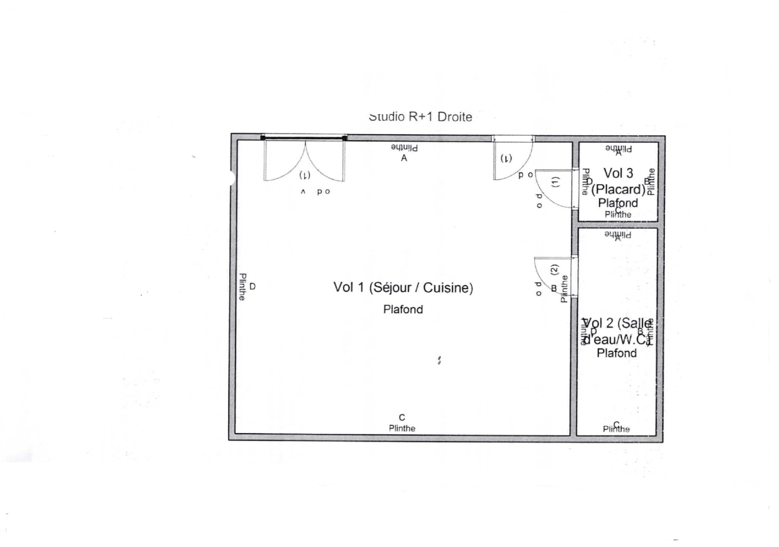
VENDU PAR NOS SOINS. L'Agence VICHY TRANSACTIONS vous propose un coquet studio dans une petite copropriété. Il se compose d'une pièce de vie avec une cuisine ouverte et une salle d'eau avec wc. Pas de travaux à prévoir. Double vitrage récent et chauffage individuel électrique. Idéal investisseur, proximité immédiate de la gare et des commerces.
Descriptif du bien
- Code postal : 03200
- Surface habitable (m²) : 19,38 m²
- Surface loi Carrez (m²) : 19,38 m²
- Nombre de pièces : 1
- Etage : 1
- Ascenseur : NON
- Nb de salle d'eau : 1
- Cuisine : AMERICAINE
- Type de cuisine : SEMI-EQUIPEE
- Mode de chauffage : Electrique
- Type de chauffage : Convecteur
- Format de chauffage : Individuel
- Murs mitoyens : 2
- Cave : OUI
- Copropriété : OUI
- Quote Part annuelle des charges : 264 €
- Prix de vente honoraires TTC inclus : 40 000 €
- Prix de vente honoraires TTC exclus : 35 000 €
- Honoraires TTC à la charge acquéreur : 14,29 %
- Charges : 22 €
- Taxe foncière annuelle : 445 €
Montant estimé des dépenses annuelles d'énergie pour un usage standard est compris entre 450 € et 650 € . Prix moyens des énergies indexés sur les années 2021, 2022 et 2023 (abonnements compris).
La ville de Vichy (03200)
Nous Contacter
Afficher le téléphone 04 70 97 54 74Les informations recueillies sur ce formulaire sont enregistrées dans un fichier informatisé par La Boite Immo agissant comme Sous-traitant du traitement pour la gestion de la clientèle/prospects de l'Agence / du Réseau qui reste Responsable du Traitement de vos Données personnelles.
La base légale du traitement repose sur l’intérêt légitime de l'Agence / du Réseau.
Elles sont conservées jusqu'à demande de suppression et sont destinées à l'Agence / au Réseau.
Conformément à la loi « informatique et libertés », vous pouvez exercer votre droit d'accès aux données vous concernant et les faire rectifier en contactant l'Agence / le Réseau.
Si vous estimez, après avoir contacté l'Agence / le Réseau, que vos droits « Informatique et Libertés » ne sont pas respectés, vous pouvez adresser une réclamation à la CNIL.
Nous vous informons de l’existence de la liste d'opposition au démarchage téléphonique « Bloctel », sur laquelle vous pouvez vous inscrire ici : https://www.bloctel.gouv.fr
Dans le cadre de la protection des Données personnelles, nous vous invitons à ne pas inscrire de Données sensibles dans le champ de saisie libre
Ce site est protégé par reCAPTCHA, les Politiques de Confidentialité et les Conditions d'Utilisation de Google s'appliquent.
