fr

Votre recherche

Vendu
Vichy (03200)

1 pièces - 19,38 m²

VICHY, CENTRE VILLE STUDIO RENOVE DANS PETITE COPROPRIETE

Ref : 102
Découvrir le bien

VENDU PAR NOS SOINS. L'Agence VICHY TRANSACTIONS vous propose un coquet studio dans une petite copropriété.

Il se compose d'une pièce de vie avec une cuisine ouverte et une salle d'eau avec wc. Pas de travaux à prévoir. Double vitrage récent et chauffage individuel électrique.

Idéal investisseur, proximité immédiate de la gare et des commerces.

TRAD_ZEPHYR_Caracteristique TRAD_ZEPHYR_Valeurs
Code postal 03200
Surface loi Carrez (m²) 19,38 m²
Nombre de pièces 1
Etage 1
Ascenseur NON
TRAD_ZEPHYR_Caracteristique TRAD_ZEPHYR_Valeurs
Nb de salle d'eau 1
Cuisine Américaine
Type de cuisine SEMI-EQUIPEE
Mode de chauffage Electrique
Type de chauffage Convecteur
Format de chauffage Individuel
Murs mitoyens 2
Cave OUI
TRAD_ZEPHYR_Caracteristique TRAD_ZEPHYR_Valeurs
Copropriété OUI
Quote Part annuelle des charges 264 €
TRAD_ZEPHYR_Caracteristique TRAD_ZEPHYR_Valeurs
Charges 22 €
Taxe foncière annuelle 445 €
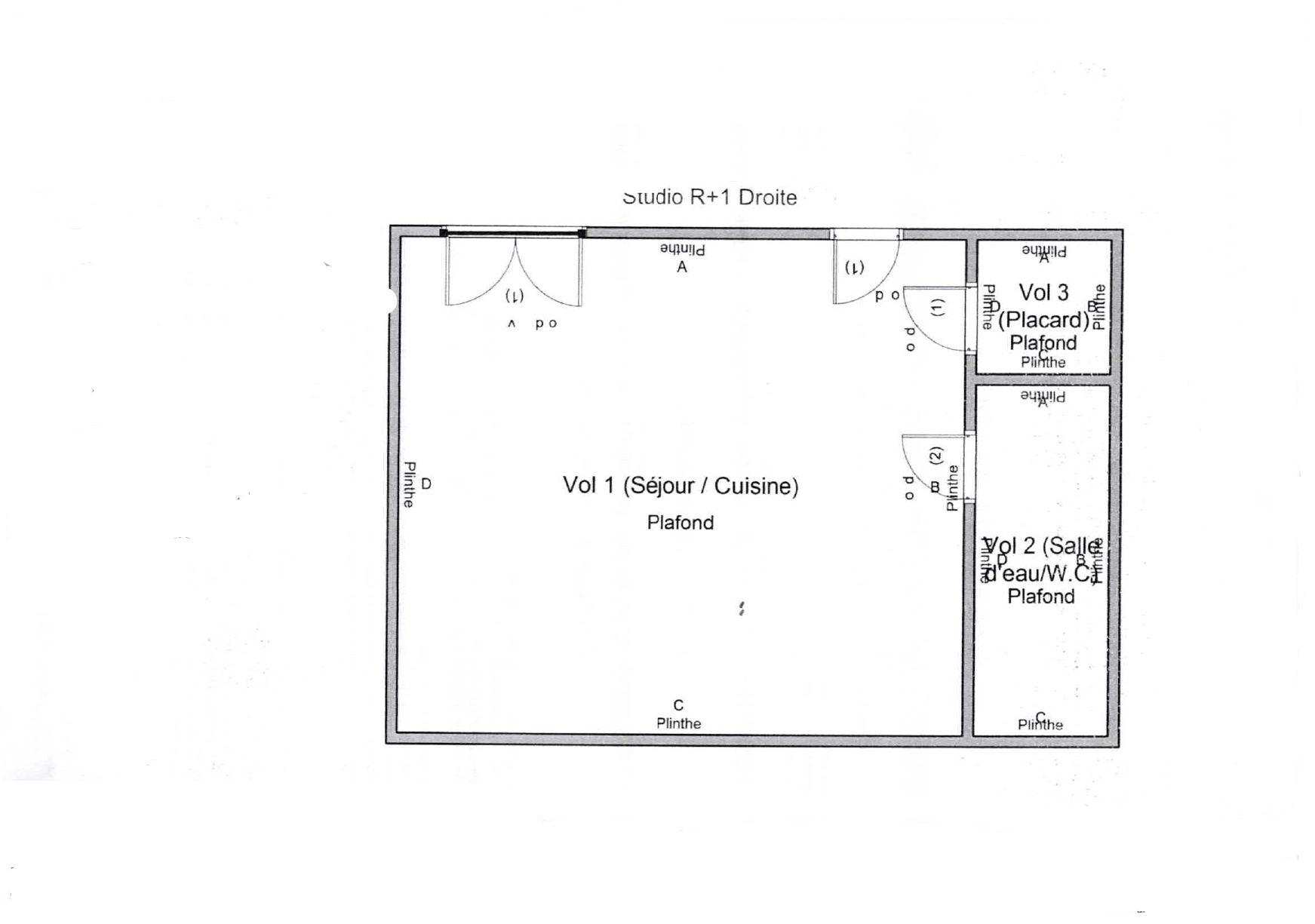
Rez de chaussée
pièce à vivre 15.76 m²

WC 0.86 m²

salle d'eau 2.76 m²

DPE GES
Contacter pour ce bien
L'agence
Téléphone 04 70 97 54 74
Adresse
68 rue de Paris 03200 Vichy

* Champ obligatoire

Les informations recueillies sur ce formulaire sont enregistrées dans un fichier informatisé par La Boite Immo agissant comme Sous-traitant du traitement pour la gestion de la clientèle/prospects de l'Agence / du Réseau qui reste Responsable du Traitement de vos Données personnelles. La base légale du traitement repose sur l'intérêt légitime de l'Agence / du Réseau. Elles sont conservées jusqu'à demande de suppression et sont destinées à l'Agence / au Réseau. Conformément à la loi « informatique et libertés », vous disposez des droits d’accès, de rectification, d’effacement, d’opposition, de limitation et de portabilité de vos données. Vous pouvez retirer votre consentement à tout moment en contactant directement l’Agence / Le Réseau. Consultez le site https://cnil.fr/fr pour plus d’informations sur vos droits. Si vous estimez, après avoir contacté l'Agence / le Réseau, que vos droits « Informatique et Libertés » ne sont pas respectés, vous pouvez adresser une réclamation à la CNIL. Nous vous informons de l’existence de la liste d'opposition au démarchage téléphonique « Bloctel », sur laquelle vous pouvez vous inscrire ici : https://www.bloctel.gouv.fr Dans le cadre de la protection des Données personnelles, nous vous invitons à ne pas inscrire de Données sensibles dans le champ de saisie libre.
Ce site est protégé par reCAPTCHA, les Politiques de Confidentialité et les Conditions d'Utilisation de Google s'appliquent.

Découvrir nos outils